Edilis Abadas, S.L.

Dirección
C/ Oeste 7, 1-E4
26005 Logroño (La Rioja)

Teléfono
941 580 896

Horario
Lunes a Viernes:
   de 10:00h a 14:00h
   de 16:00h a 20:00h
Vivienda Tipo D - Edilisabadas
Empresa Inmobiliaria con edificio de nueva construcción en Logroño.
construcción, promotora, pisos,logroño,la rioja, edificio,edificación, nueva,casas,calidad, ahorro, ahorro energetico,EdilisAbadas,constructora,residencial,Edificio Las terrazas del francés,promoción,oportunidad
120
portfolio_page-template-default,single,single-portfolio_page,postid-120,bridge-core-2.5.9,qode-page-transition-enabled,ajax_fade,page_not_loaded,,qode-title-hidden,side_area_uncovered_from_content,qode-theme-ver-24.4,qode-theme-bridge,disabled_footer_top,qode_header_in_grid,wpb-js-composer js-comp-ver-8.4.1,vc_responsive

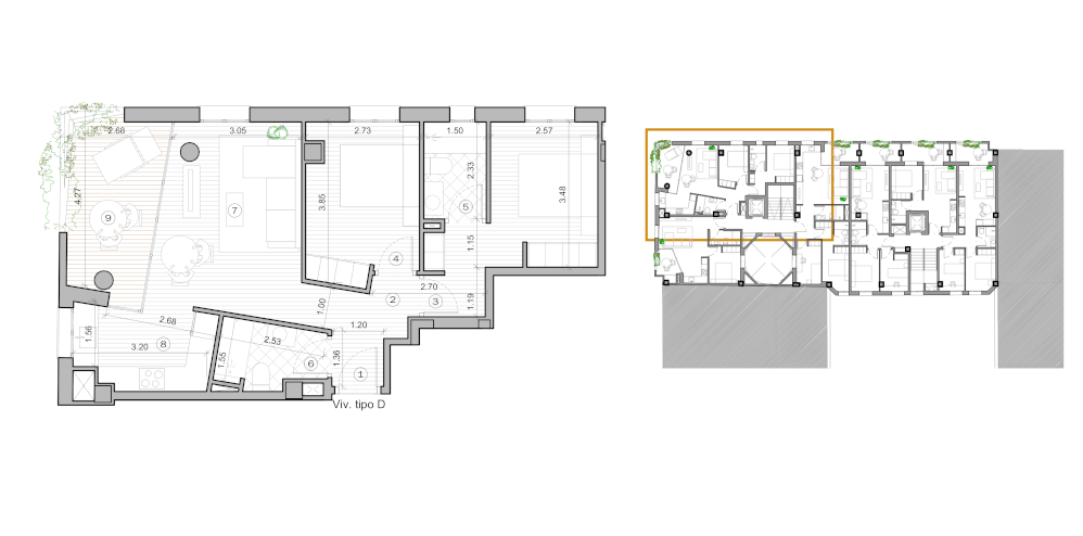
VIVIENDA TIPO D

Residencial junto a colegio, biblioteca, parque, centro asistencial… con todas las ventajas que sólo la obra nueva moderna actual le puede ofrecer. Ahorro energético y calidad reunidos en un mismo edificio.

Vivienda tipo D
METROS

66,59

ALTURA

1-2-3-4

HABITACIONES

2

BAÑO

2

ASEO

NO

TERRAZA

9,75

METROS

80,18

BAÑO

2

ALTURA

1-2-3-4

ASEO

NO

HABITACIONES

3

TERRAZA

NO

OTRAS DISTRIBUCIONES